50471 Cholla, Johnson Valley, California 92285, Johnson Valley, 92285 - 1 bed, 2 bath

Price Vs. Estimate
The estimated value ($240,000) is $0 (0%) lower than the list price ($240,000). This property may be overpriced.
Key pros and cons
Compared to the nearby listings
More Insights
About this home
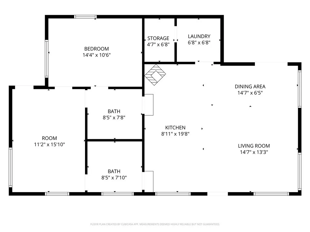
Rare opportunity to own a 5 acre parcel with open concept home and detached 2 car garage that includes an office space with bathroom. The main home has been recently upgraded with a roof that is less than 5 years old, new fixtures in both bathrooms, kitchen has new tile counter, new flooring throughout, and new water pipes to main home and garage. There are patios on the front and back of the home. From the front patio, you have views of the entire valley below including Johnson Valley and the infamous KOH. From the back patio, you have a view of the mountains. The home is listed as a 1 bedroom, however, the front room can be used as a larger main bedroom (with its own private entrance and bathroom). There is a separate entrance to the open concept kitchen/living room/dining room area that can be used for the main entry area. So many possibilities! The home also features a separate laundry area with its own sink. Water is stored in a 1550 gallon storage tank on the property and uses propane for fuel. The garage features a new garage roll up door with plenty of space for the toys, workshop and/or your hobbies. The attached office area features a living area, eating area with sink, new counter tops, and updated bathroom with shower. And finally the property has approximately 1 acre surrounding the home fully fenced for your privacy. If you are looking to live away from the hustle and bustle of the city, a vacation retreat, or rental property come take a look! HOME IS BEING SOLD AS-IS. NO REPAIRS OR CORRECTIONS WILL BE MADE

















