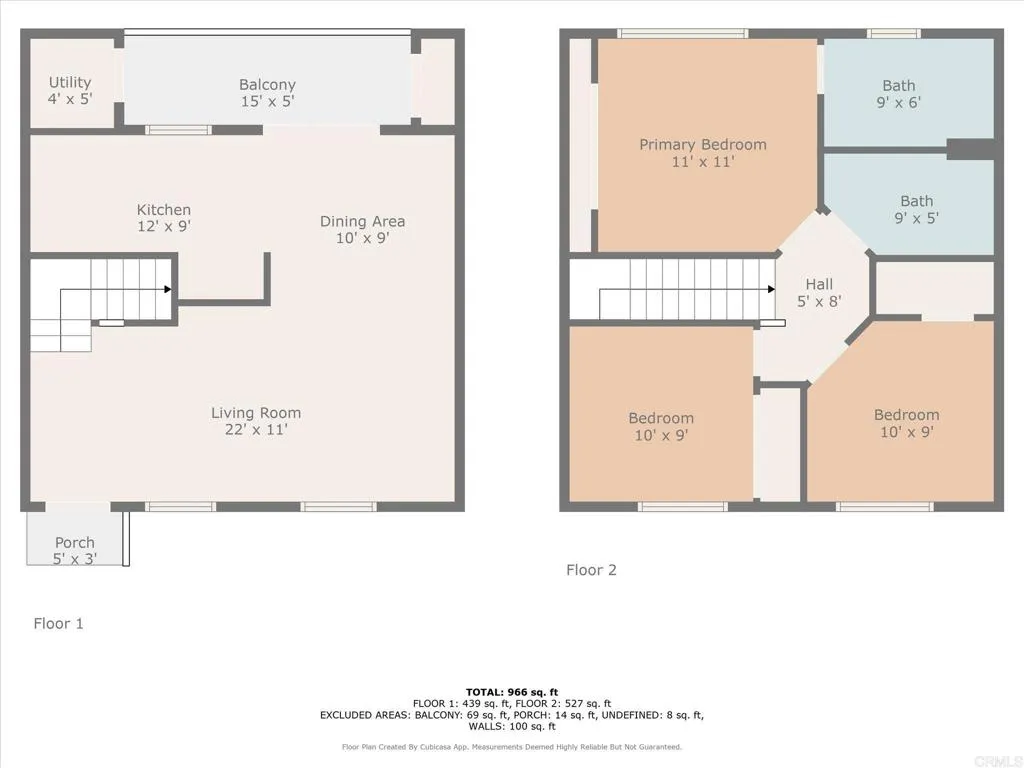
8166 Lemon Grove Way B, Lemon Grove, California 91945, Lemon Grove, 91945 - 3 bed, 2 bath

About this home
We found 3 Cons,5 Pros. Rank: price - $500.0K(22th), sqft - 935(22th), beds - 3(50th), baths - 2(22th).
Charming 3-Bedroom Townhome with Modern Updates and Private Garage This beautifully updated 3-bedroom, 2-bathroom townhome offers 935 sq ft of comfortable living space in a well-maintained complex. Recent renovations include fresh paint, polished floors, and cleaned carpets throughout. The kitchen and both bathrooms have been thoughtfully remodeled with new cabinetry, countertops, appliances, and fixtures. Enjoy the convenience of a large private 2-car garage with additional storage space. The covered balcony/deck features two storage closets, providing ample room for your belongings. A private gas water heater ensures consistent hot water, and the washer and dryer hookups are included at no additional cost. The complex boasts well-maintained landscaping and hardscaping, contributing to a pleasant living environment. Located in a desirable area, this townhome offers both comfort and convenience.




































